Aanbod
€ 1.050.000
2230 HERSELT
Geografische ligging
Adres
:
2230 HERSELT
Eigenschappen
Bewoonbare opp.
:
4380 m²
Grondoppervlakte
:
6,000 m²
Voorgevel
:
33 m
Perceel breedte
:
50 m
Bouwjaar
:
niet meegedeeld
COMFORT
Aansluiting aardgas
:
Nee
Aansluiting waterleiding
:
Nee
Lift
:
Nee
Verwarming
:
Niet meegedeeld
Keuken
:
Niet meegedeeld
Algemeen
Prijs
:
€ 1.050.000
Stedenbouwkundige informatie
Voorkooprecht
:
Niet van toepassing
Bouwvergunning verkregen
:
Niet van toepassing
Dagvaarding en herstelvordering
:
Niet van toepassing
Verkavelingsvergunning
:
Niet van toepassing
Erfgoed
:
Nee
Wettelijke informatie
EPC
:
Op aanvraag
Omschrijving
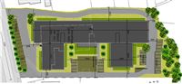
Terrein aan de Provinciebaan te Herselt, gelegen volgens Gewestplan 17 "Herentals - Mol" in een zone voor "gemeenschapsvoorzieningen en openbaar nut". De oppervlakte bedraagt om en bij 6.000m² en het mogelijks ontwikkelbaar potentieel schommelt rond 7.000m². Het goed leent zich voor alle activiteiten die overeenkomstig de bestemming van de grond in dergelijke zones mogen ondergebracht worden.
Terrain situé à la Provinciebaan à Herselt et selon le plan urbanistique 17 "Herentals - Mol" se trouve dans une zone pour "installations communautaires et les services publics". La surface du terrain est plus au moin 6.000m² et le potentiel développement est +/- 7.000m². La propriété se prête à toutes les activités qui correspondent à la destination du sol.
Terrain situated on the Provinciebaan in Herselt and located according to the urbanistic plan 17 "Herentals - Mol" in a zone for "community facilities and public utilities". The surface of the terrain is approximately 6.000m² and the building potential is around 7.000m². The property lends itself to all activities that can be incorporated in accordance with the destination of the soil.










