Te Koop
3582 KOERSEL
Geografische ligging
Adres
:
3582 KOERSEL
Eigenschappen
Bewoonbare opp.
:
4998 m²
Grondoppervlakte
:
19,900 m²
Bouwjaar
:
niet meegedeeld
COMFORT
Aansluiting aardgas
:
Nee
Aansluiting waterleiding
:
Nee
Lift
:
Nee
Verwarming
:
Niet meegedeeld
Keuken
:
Niet meegedeeld
Algemeen
Prijs
:
Op aanvraag
Aantal slaapkamers
:
66
Aantal badkamers
:
66
Stedenbouwkundige informatie
Voorkooprecht
:
Niet van toepassing
Bouwvergunning verkregen
:
Niet van toepassing
Dagvaarding en herstelvordering
:
Niet van toepassing
Verkavelingsvergunning
:
Niet van toepassing
Erfgoed
:
Nee
Wettelijke informatie
EPC
:
Op aanvraag
Omschrijving
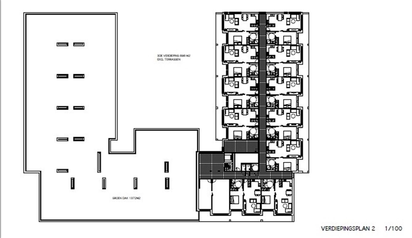
Grond gelegen aan de Heerbaan te Koersel (Beringen) van om
en bij 19.900m² volgens het
gewestplan gesitueerd in een zone voor gemeenschapsvoorzieningen en openbaar nut.
Eventuele mogelijkheid tot het ontwikkelen van een 66-tal serviceflats verspreid over 3
niveaus ( 2050m² - 2050m² en 898m²) met oppervlakten variërend tussen 55 en 65m²
en het
realiseren van een verkaveling van loten voor open (405m²), halfopen (360m²) en gesloten
bebouwing (270m²).
Terrain situé sur le Heerbaan à Koersel (Beringen)
d'environ 19.900m² et selon le plan régional
situé dans une zone pour service communautaire et utilité publique. Possibilité de développer
66 appartements d'assistence répartis sur 3 niveaux (2050m² - 2050 m² et 898 m²)
avec des
surfaces variant entre 55 et 65m² et la réalisation d'un lotissement avec des lots pour la
construction des bâtiments détachés (405m²), semi-détachés (360m²)
et férmés (270m²).
Land located on the Heerbaan in Koersel (Beringen) of about
19.900m² according to the
regional plan situated in a zone for community and public utility. Possibility to develop 66
serviceflats spread over 3 levels (2050m² - 2050m² and 898m²) with surfaces varying between
55 and 65m² and the realization of an allotment of lots to build detached houses (405m²),
half
detached houses (360m²) and linked houses (270m²).





